奶奶公寓
奶奶公寓
首页 奶奶公寓单层紧凑型轻钢附属建筑
单层紧凑型轻钢附属建筑
单层紧凑型轻钢附属建筑
单层紧凑型轻钢附属建筑
单层紧凑型轻钢附属建筑
单层紧凑型轻钢附属建筑
单层紧凑型轻钢附属建筑
单层紧凑型轻钢附属建筑
单层紧凑型轻钢附属建筑

单层紧凑型轻钢附属建筑

轻钢附属功能小屋 - 单层紧凑型轻钢附属建筑(装配式建造,空间拓展)

产品参数与规格

建筑类型:单层轻钢附属小屋

结构材质:高强度轻钢龙骨(屈服强度Q550/Q355

外观风格:简约实用风(可定制仿砖纹、工业风等风格)

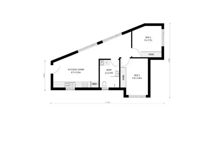
户型布局:紧凑型功能布局(可定制 1 室、储物间、工具房等单一功能空间)

建筑面积:按需求定制(示例户型约50㎡,可灵活调整)

建造周期:装配式施工,主体结构搭建约 15-25 天(不含装修)

性能特点

空间拓展,功能单一明确

可作为家庭工具房、设备间、小型储物库等,精准解决主宅周边单一功能空间的缺失问题,让庭院空间利用更高效。

结构稳固,占地灵活

轻钢龙骨结构体系,抗震抗风性能可靠,仅需小面积场地即可搭建,适配庭院角落、边缘等多种位置。

装配式建造,极速完工

工厂预制构件现场组装,施工流程极简,十余天即可完成搭建,快速实现附属空间的功能补充。

定制灵活,风格协调

可根据主宅风格定制外观(如仿砖纹外立面)、尺寸大小,与主建筑及庭院风格和谐统一,不突兀。

环保经济,维护简单

轻钢材质环保可回收,建造成本经济;后期几乎无需复杂维护,能长期稳定发挥单一功能,省心又省钱。
相关产品
相关产品
相关新闻
相关新闻